Subscribe to Haunted Portraits
Save This Page
 
 

 

 

 

Walt Disney Haunted Mansion Blueprints

 
 

I visited Walt Disney World (WDW) way back in 1973. Back then WDW was just the Magic Kingdom, but oh what a Magical place it was. Of all the things we did at the park that crowded Easter weekend, the one that was truly awe inspiring was the Haunted Mansion. In my opinion this is the finest work of Disney Imagineering ever created. I had the joy a few years ago of sharing the Haunted Mansion and it's resident 999 resident ghosts with my daughter and now it's her favorite also. It's pretty obvious that The Haunted Mansion has been a huge influence on the Haunted Changing Portraits I do and many of my works are based on scenes or props in The Haunted Mansion. Below are a few of the blueprints and a tribute to the creative people that brought this idea to life. If you have any additional Blueprints, I'd love to know about them. E-mail me

512
513
514
507 502
503
308 304
504
\
momemento mori
Haunted Mansion WDW Blueprint
Southwest Elevation
Haunted Mansion WDW Blueprint
Seance Area
Haunted Mansion Blueprint
Haunted Mansion Blueprint
Haunted Mansion Blueprint
Haunted Mansion WDW Blueprint
Weathervane
Haunted Mansion WDW Blueprint
Second Floor Terrace
Haunted Mansion Blueprint
Haunted Mansion Blueprint
Haunted Mansion Blueprint
Haunted Mansion WDW Blueprint
Crypt Elevation
Haunted Mansion WDW Blueprint
Facade A & B
Haunted Mansion Blueprint
Haunted Mansion Blueprint
Haunted Mansion WDW Blueprint
Facade C & D

Haunted Mansion WDW Blueprint
Facade G
Haunted Mansion Disneyland Blueprint
Conservatory & Endless Hallway
Haunted Mansion WDW Blueprint
Seance Ball
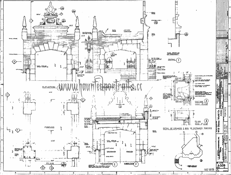
Haunted Mansion WDW Blueprint
Portico
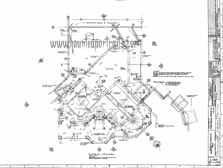
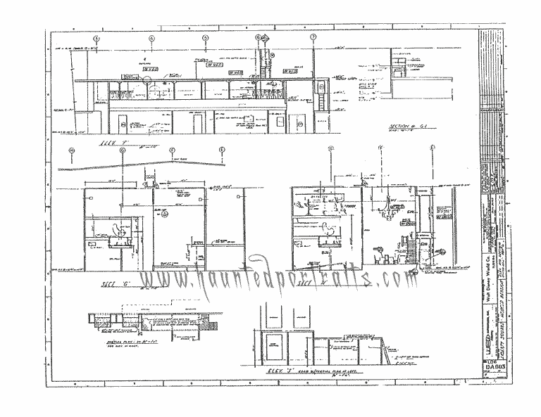
Haunted Mansion WDW Blueprint
Roof Plan
Haunted Mansion Blueprint
Haunted Mansion WDW Blueprint
Colonnade
Disneyland Haunted Mansion Blueprint
Bat Stantion
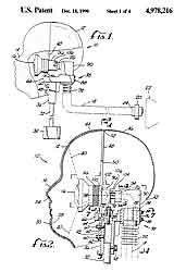
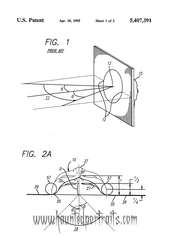
Complete Madame Leota Patent
(Note- This is no longer used in the Haunted Mansion)
Madame Leota Patent Fig. 1 & 2
(This projection method is still used at Buzz Lightyear's Space Ranger Spin)
Madame Leota Patent Fig. 3, 4 & 5
Haunted Mansion
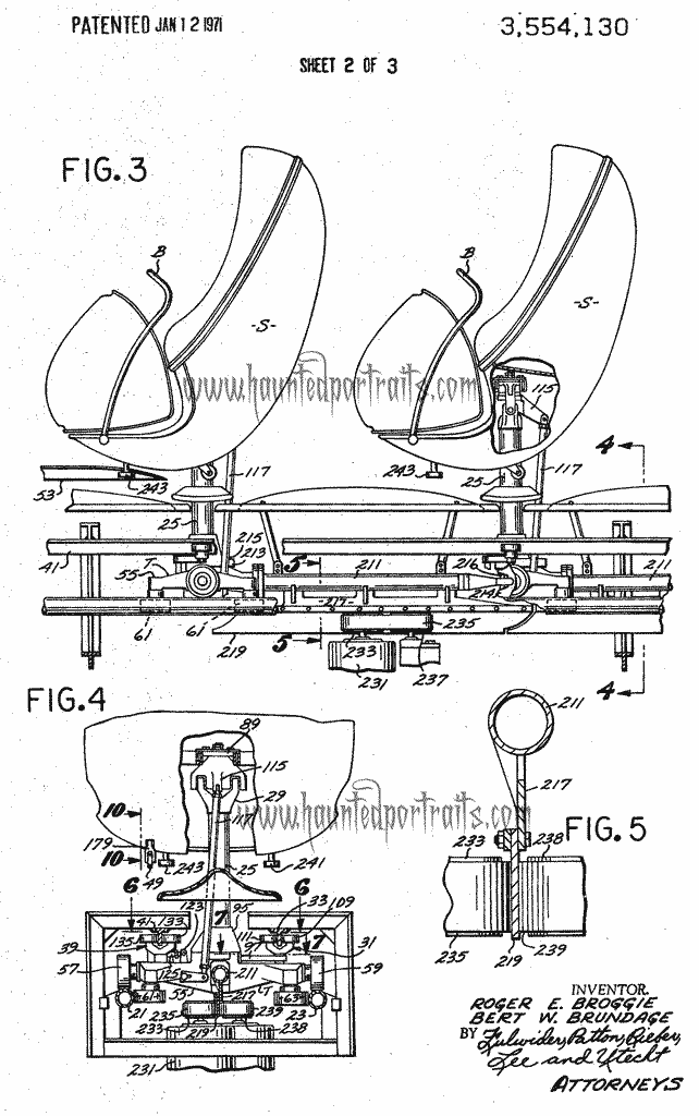
Omnimover Patent
Haunted Mansion
Omnimover Patent page 3
Haunted Mansion
Omnimover Patent page 4
Haunted Mansion Bust Patent Haunted Mansion Bust Patent Fig 1 & 2A
Haunted Mansion Blueprint
Dueling Pistol
Haunted Mansion Blueprint
Knight
Haunted Mansion Blueprint
Claw Shadow Caster
Haunted Mansion Blueprint
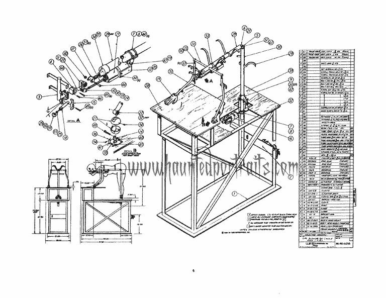
Hitchhiking Ghost Assembly
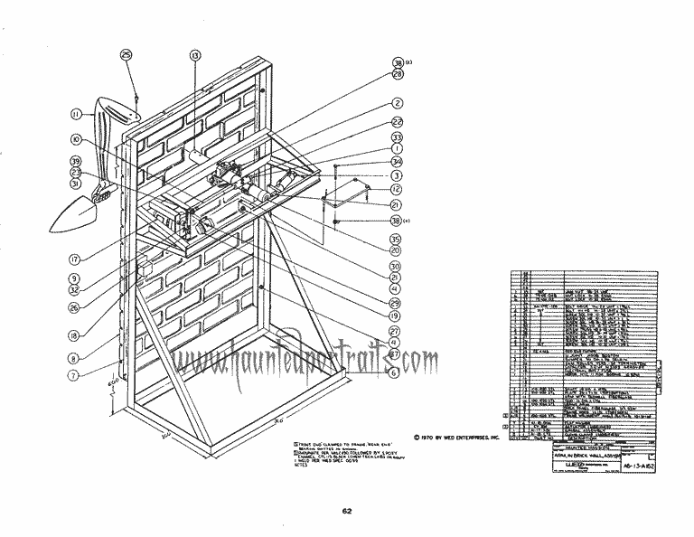
Haunted Mansion Blueprint
Arm in Brick Wall Assembly
Haunted Mansion Blueprint
Piano Assembly
Disneyland Haunted Mansion Blueprint
Intrance Hall Elevation
Disneyland Haunted Mansion Blueprint
West - North Facade 1
Disneyland Haunted Mansion Blueprint
West - North Facade 2
Disneyland Haunted Mansion Blueprint
Park West Side
Disneyland Haunted Mansion Blueprint
New Sign
Disneyland Haunted Mansion Blueprint
Tunnel Under RR Tracks
Haunted Mansion Ring Tones Haunted Mansion Blueprint
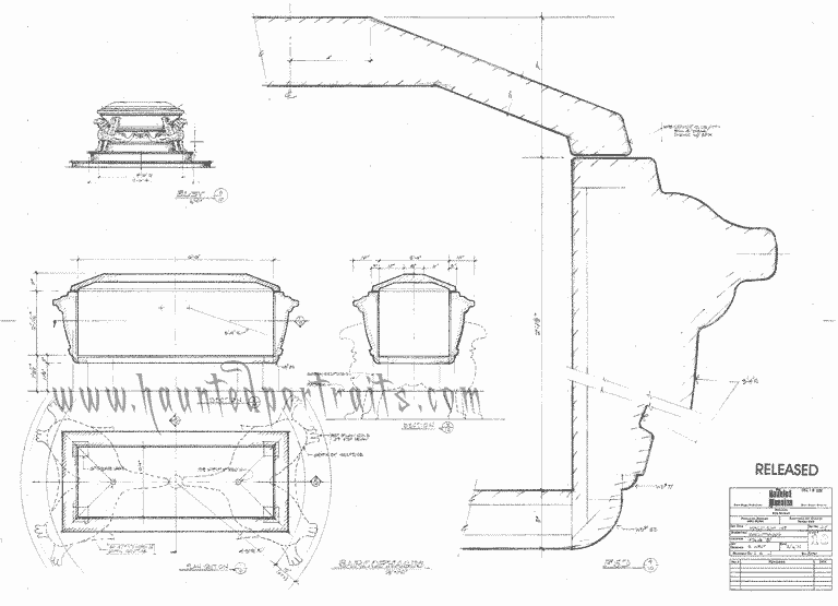
Coffin Side View
Haunted Mansion WDW Blueprint
Gargoyle
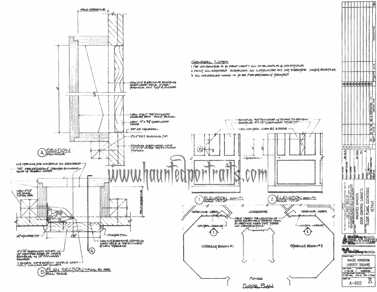
Haunted Mansion WDW Blueprint
Stretching Room
Haunted Mansion WDW Blueprint
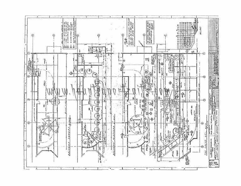
Ball Room
Haunted Mansion WDW Blueprint
Ball Room 2
Haunted Mansion WDW Blueprint
Ball Room Top
Haunted Mansion WDW Blueprint
Atic Exit
Haunted Mansion WDW Blueprint
Hitchhiking Ghost Path
Haunted Mansion WDW Blueprint
Graveyard
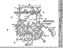
Haunted Mansion WDW Blueprint
Graveyard 2
Haunted Mansion WDW Blueprint
Singing Bust
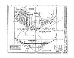
Haunted Mansion WDW Blueprint
Ride Path
Haunted Mansion WDW Blueprint
Rocker
Haunted Mansion WDW Blueprint
Coffin Assembly
Haunted Mansion Blueprint
Grandfather Clock
Haunted Mansion Blueprint
Hunchback Hitcher
Haunted Mansion Blueprint
Candle Blow
Haunted Mansion Blueprint
Pickwick
Haunted Mansion Blueprint
Skeleton Hitcher
Haunted Mansion Blueprint
Medieval Soldier and Egyptian Lady
Haunted Mansion Blueprint
Jiggling Tombstone
Haunted Mansion Blueprint
Caretaker's Dog
Haunted Mansion Blueprint
Ghost Bride
Haunted Mansion Blueprint
Little Man Hitchiker
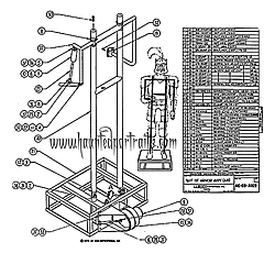
The Haunted Mansion Movie Hearse A Blueprint The Haunted Mansion Movie Hearse B Blueprint
 
The Haunted Mansion Movie Hearse C Blueprint The Haunted Mansion Movie Finial Blueprint The Haunted Mansion Movie Sarcophagus Blueprint
 
The Haunted Mansion Movie Door Hinge Blueprint The Haunted Mansion Movie Mausoleum Door Blueprint The Haunted Mansion Movie Library Interior Blueprint
 
The Haunted Mansion Movie Grand Entry Blueprint The Haunted Mansion Movie Armory Blueprint The Haunted Mansion Movie Cast Metal Arch Blueprint
 
The Haunted Mansion Movie Mausoleum Interior Blueprint The Haunted Mansion Movie Pavillion Blueprint 2006 Disneyland Haunted Mansion Photos
blueprint    
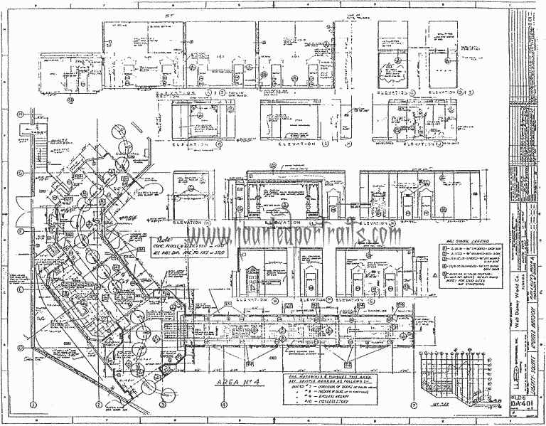
Haunted Mansion WDW Blueprint
Load-Unload Area
   
 
All Haunted Mansion drawings © The Walt Disney Company . This page is a dedication page intended solely to promote Disney theme parks and honor the people that had the creativity to bring it to life. This page is not officially connected with the Walt Disney Company or any of it's business units. Click here to visit the Official Haunted Mansion Page at Walt Disney World
 
 
Mail This Page to a Friend
 
Tiny Legal Print
Sitemap



Haunted Attraction Banner Exchange


Sinister Visions Banner Exchange


Horrorfind Banner Exchange